Casus Vier woongebouwen maken samen het project De Groene Kaap op het Rotterdamse Katendrecht. De architect, landschapsarchitect, ontwikkelaar/bouwer en belegger blikken terug op het ontwikkelingsproces. Hoe hebben zij groen en biodiversiteit een plek kunnen geven in dit toch hoogstedelijke plan? In gesprek met Koos Kok (architect-directeur bureau MASSA), Eric-Jan Pleijster (landschapsarchitect-directeur LOLA landscape architects), Paul Vernooy (ontwikkelingsmanager Stebru) en Erwin Wessels (directeur Altera Vastgoed).
De lessen van De Groene Kaap
- Borg het groen door het een integraal of zelfs dragend onderdeel van het plan te maken.
- Betrek de ecoloog zo vroeg mogelijk bij het project voor een holistische benadering van de natuurlijke elementen.
- Zorg ervoor dat de groene delen van het plan aansluiten op de stadsnatuur in de buurt en samen een netwerk vormen.
- Overweeg de urban rewilding-aanpak (het aanbieden van condities) voor een andere kijk op inrichting en beheer van openbaar groen.
- Denk goed na over het functioneren van de collectieve binnentuin. Hoe regelen partijen de toegankelijkheid maar ook schoon, heel en veilig? Geef op dat punt duidelijke spelregels mee.
- Vooral in de beginperiode moeten partijen bij een grootschalig project een extra inspanning leveren wat betreft overlast en veiligheid in de gemeenschappelijke ruimtes.
- Grootschalige projecten geven ruimte voor meer groene elementen én voor andere vormen van property management, zoals het aanstellen van een huismeester.
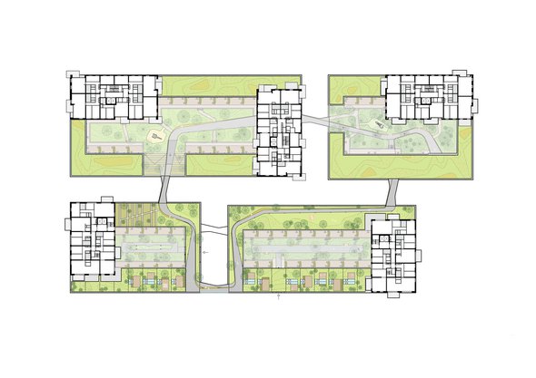
De daktuinen op de vier gebouwen die samen De Groene Kaap vormen zijn verbonden via bruggen. De looproute die zo gecreëerd wordt is het meest in het oog springende element. Hoe is dit idee ontstaan?
Koos Kok: “De gemeente wilde op deze plek vier stoere industriële havengebouwen. Het moest vooral niet te veel op woningen lijken. En je hebt het over een hoge dichtheidsplan, met ongeveer 300 woningen per hectare. Het concept dat we samen met Stebru hebben bedacht, houdt in dat je van die vier gebouwen één buurt maakt met veel plekken voor ontmoeting in een aangename, weldadige omgeving. Vandaar de daktuinen, die op de garages liggen. De verbindende bruggen zaten er al in vanaf de eerste schets, maar Robert Steenbrugge, de algemeen directeur van Stebru had op een gegeven moment een lumineus idee, hij zei: “Je moet er ook kunnen rondlopen”. Die rondgang geeft het project een unieke kwaliteit.”
Alle natuurinclusieve elementen zijn er gekomen op initiatief van de ontwikkelaar, de architect en de landschapsarchitect. Het is allemaal eigen ambitie.
Heeft de gemeente destijds al richtlijnen meegegeven op het gebied van biodiversiteit? Of waren jullie op dit punt je tijd vooruit?
Eric-Jan Pleijster: “Nee, er waren nog geen richtlijnen. Dat vind ik het mooie van dit project: alle natuurinclusieve elementen zijn er gekomen op initiatief van de ontwikkelaar, de architect en de landschapsarchitect. Het is allemaal eigen ambitie. Ik denk dat met name het idee van ‘teruggeven aan de stad’ belangrijk is bij De Groene Kaap. Toen LOLA bij het project betrokken werd, zaten de bruggen tussen de tuinen al in de hoofdopzet en de ambitie om een daklandschap te maken lag al vast, dus er was veel potentie. Wij hebben vervolgens geprobeerd om het concept nog een niveau hoger te tillen door actief bij te dragen aan de biodiversiteit in de stad. Ik zie de daktuinen als een stukje stadsnatuur op Katendrecht. Uit de analyse van de omgeving bleek dat we via de bomen op de oude dijken een groen netwerk konden vormen.
Binnen het project hebben we vervolgens een landschapsbeleving gemaakt, waarbij je vanaf het maaiveld steeds hoger opklimt in een soort berglandschap-in-de-stad: van het dal via de weide naar de steppe en uiteindelijk de top van de ‘stadsberg’. Als je kijkt naar de beschaduwing, dan hebben alle hoven totaal verschillende condities. Het blok waar je binnenkomt is echt een schaduwtuin wat betreft de beplanting. Als je boven bent, is het landschap veel meer open, met grassen en vaste planten. Verder hebben we zoveel mogelijk nestkasten voor vogels en vleermuizen geïntegreerd in de muren, in de zitelementen, et cetera. Daar heeft een ecoloog van Aqua-Terra Nova ons bij geadviseerd.”
En de afvoer van water? Had de gemeente daar al richtlijnen voor?
Paul Vernooy: “Nee, maar let wel: we praten over 2014. Inmiddels heeft de gemeente daar een norm voor, maar het hele thema klimaatadaptatie kwam pas gedurende de rit wat meer in beeld. We hebben wél overal een flink waterbufferingspakket aangebracht dat bestaat uit kratten – ook op de hogere daken die niet beloopbaar zijn. En er ligt een behoorlijke laag aarde op de kratten, die de afvoer van regenwater ook vertraagt. Per saldo is het regenwater niet genoeg om de planten te bewateren. Op de daken waar het publiek rondloopt, zijn sproei installaties aangebracht. Op de hogere daken is dat niet nodig.”
Binnen het KAN Platform zijn we zeer geïnteresseerd in de juridische constructies die bedacht worden voor onderhoud en beheer van collectieve binnentuinen. Hoe is dit geregeld bij De Groene Kaap?
Erwin Wessels: “De Groene Kaap is een combinatie van koop- én huurwoningen, hierdoor is een VvE noodzakelijk. Er zijn verschillende VvE’s voor de verschillende gebouwen en er is een overkoepelende VvE die verantwoordelijk is voor het onderhoud van de gehele binnentuin en de omgeving, oftewel: is alles schoon, heel en veilig? Vanaf het begin hebben we een huismeester aangesteld die toeziet op de veiligheid van de omgeving, onderhoudspartijen aanstuurt en dient als vraagbaak voor de bewoners.”
“Gezien het open karakter van het project en de daktuinen kwamen er in het begin ook mensen op bezoek die ’s nachts wilden verblijven in de trappenhuizen Daar zitten de bewoners niet echt op te wachten. We hebben op een gegeven moment in overleg met de gemeente en de wijkagent besloten om ’s nachts de hekken dicht te doen. Een tijd lang waren de hekken ook overdag gesloten, maar inmiddels staan ze overdag weer open. We hebben ook aanvullende maatregelen genomen op het gebied van vluchtroutes en bewaking. Er zijn bijvoorbeeld camera’s opgehangen.”
In de eerste periode moet je wat betreft overlast en veiligheid in de gemeenschappelijke ruimtes vaak een driedubbele inspanning leveren.
“Tijdens warme periodes zorgt de huismeester voor extra bewatering van de planten. Bij een dergelijk aantal woningen is het goed mogelijk om het property management op een iets andere manier te organiseren. Dat doet Altera samen met de VvE. En ook de mensen met een koopwoning vinden het fijn dat er doorlopend iemand aanwezig is.”
Koos Kok: “In de eerste periode moet je wat betreft overlast en veiligheid in de gemeenschappelijke ruimtes vaak een driedubbele inspanning leveren. Ik heb dit bij meer projecten in Rotterdam gezien. Als er overal tegelijk verhuisd wordt, staat een gebouw open en dat trekt ongewenste bezoekers aan. Daardoor kan een onveilig gevoel ontstaan en voordat zoiets weg is, ben je een jaar verder.”
Wordt alle onderhoud van het groen uitbesteed of moedigen jullie de bewoners aan om ook zelf de schoffel ter hand te nemen in de collectieve tuinen?
Erwin Wessels: “In het bovenste gedeelte van het plan, met name bij de koopwoningen, vind je gedeelde moestuintjes die tevens een sociale functie hebben. Daar zit een groep mensen die het ontzettend leuk vinden om te tuinieren, maar de VvE heeft geen officiële tuincommissie. De onderhoudspartij zorgt ervoor dat de gedeelde tuinen ook netjes blijven op momenten dat de bewoners er geen tijd voor hebben.”
Hoe zit het met de doorstroming?
Erwin Wessels: “We zijn nu een paar jaar verder en als je kijkt naar de mutatiegraad, wijkt die niet af van de rest van onze projecten. Sterker nog, op dit moment ligt het lager dan elders, maar eigenlijk is het nog wat vroeg om dat zo te stellen. Veel mensen – ook gezinnen – die er vanaf het eerste uur wonen, zitten er nog steeds en naar volle tevredenheid.”
Het moest een attractief gebied worden in een wijk die in opkomst is. Vandaar die extra aandacht voor de buitenruimte, de daktuin en de horeca in de plint. In die opzet zijn we geslaagd.
“In het begin vond Altera het best spannend om op Zuid zo’n grote hoeveelheid huurwoningen aan te kopen. Onze primaire gedachte was dat we meer moesten bieden dan alleen een huurwoning. Het moest een attractief gebied worden in een wijk die in opkomst is. Vandaar die extra aandacht voor de buitenruimte, de daktuin en de horeca in de plint. In die opzet zijn we geslaagd. Maar Altera kijkt ook naar aspecten zoals klimaatmitigatie en klimaatadaptatie. We houden in onze investeringsbeslissingen standaard rekening met zaken als hittestress en wateroverlast is onderdeel van ons ESG-beleid.”
Wat betreft de landschapsarchitectuur liep LOLA met dit project ver op de troepen vooruit. Hebben jullie er zelf ook van geleerd?
Eric-Jan Pleijster: “Zeker. Rond 2015 zag je een nieuwe focus ontstaan op de integratie van landschap en ontwikkelingsopgaves in de binnenstad. Landschapsarchitecten kregen in die periode meer binding met zaken als hoogbouw en binnenstedelijke gebiedsontwikkeling, maar het was allemaal learning by doing. De Groene Kaap is in zekere zin een experiment geweest waar we nog veel op intuïtie deden. Er is nu veel meer kennis beschikbaar over hoe je natuurinclusief kunt bouwen. ”
“Concreet denk ik aan het betrekken van ecologen bij het project in een zo vroeg mogelijk stadium. Door de samenwerking met ecologen ontstaat er een veel holistischere benadering van natuurinclusief bouwen. Dat brengt me ook bij een tweede les: de zogenaamde ‘nature based city’ waarbij je niet werkt vanuit één enkel project, maar veel meer kijkt naar de ecosystemen in de stad. De inrichtingsmaatregelen die je dan treft hebben niet alleen betrekking op het blok zelf, maar ook op de omgeving, waardoor je groene netwerken met elkaar verbindt. Een derde punt, en dat vind ik zelf heel spannend, is het zogenaamde ‘urban rewilding’. Een term die je de laatste tijd wat vaker hoort rondgaan. Dit wil zeggen dat je de inrichting en het beheer op een andere manier aanpakt. Je gaat condities aanbieden, zoals het grondpakket, maar de natuur moet er zelf bezit van nemen. Als ik nu naar De Groene Kaap kijk dan denk ik: ja, het is een geslaagd project, maar op dat punt hadden we er nog meer uit kunnen halen.”
Paul, wat heeft Stebru specifiek van dit project opgestoken?
Paul Vernooy: “Natuurinclusief ontwikkelen is inmiddels een hot topic geworden, je ziet het nu bij allerlei projecten, maar wél op heel verschillende schaalgroottes. Wat ik bij De Groene Kaap heb gezien is dat het groen zo’n integraal onderdeel van het plan was – bijna het dragende element – dat er nooit iemand aan heeft getornd. Het kost veel geld om zo’n daktuin aan te leggen en er gebeurt van alles gedurende het project, dus als je niet uitkijkt word je alle kanten op geslingerd. Dat is zeker een uitdaging geweest, maar uiteindelijk werd de daktuin zelfs door de naam geborgd. Ik zie nu in steeds meer projecten die wij oppakken dat natuurinclusiviteit en klimaatadaptiviteit op die manier geborgd worden. Vergeet niet: iedereen wordt er blij van. Mensen vinden het prettig om op groen uit te kijken en dat geldt zeker ook voor de kinderen. Ik denk dat het in de toekomst een essentieel onderdeel zal zijn van je planvorming.”
Erwin Wessels: “Bij Altera zien we deze positieve kanten ook. Dat is de reden dat we samen met Stebru én LOLA een volgende stap hebben gezet in Zaandam met het project De Zaanse Helden dat toevallig ook weer 356 huurwoningen omvat, opnieuw met een binnentuin. De lessen die we dankzij De Groene Kaap hebben geleerd, worden hier toegepast. Eén van onze leerpunten is dat een groot project veel voordelen heeft. Je hebt een ruimer budget om groene impact te realiseren. Anderzijds: als je een groot complex oplevert met circa 90 appartementen per fase dan is het een grote uitdaging om de verhuizingen van de bewoners goed te coördineren. Een ander belangrijk aspect is de binnentuin: hoe functioneert dat gebied? Hoe regel je de toegankelijkheid? Hoe borg je schoon, heel en veilig? Dat is prima te doen maar je moet er wél vooraf goed over nadenken. Onze ervaringen met De Groene Kaap en onze samenwerkingspartners helpen hier enorm bij”
Koos Kok: “Je moet goed aan de bewoners uitleggen welke gedragsregels er gelden voor een collectieve tuin. Het zijn vaak maar heel kleine dingen waarover je stevige ruzies kunt krijgen, zoals de plek waar je je vuilnisbak neerzet. Als je dat vooraf goed afspreekt is er geen enkel probleem. Geef dus spelregels mee die goed beschrijven op welke manier je woont in zo’n project en hoe je met elkaar omgaat.”
Ziektekostenverzekeraars zijn een voorbeeld van een partij die baat heeft bij investeringen in groen
Dank voor het delen van jullie lessen. Zijn hiermee alle onderwerpen aan bod gekomen of willen jullie nog iets kwijt over De Groene Kaap?
Eric-Jan Pleijster: “We hadden een heel hoge ambitie wat betreft natuurinclusieve maatregelen en dan wordt de uitvoerbaarheid en de begroting echt een uitdaging. Op een gegeven moment worden er dingen anders uitgevoerd dan je in eerste instantie hebt bedacht. Als je uitzoomt denk ik dat de business case van dit soort natuurinclusieve bouwprojecten niet goed in elkaar zit. Groen wordt immers nog altijd gezien als een kostenpost, en als een sluitpost die aan het eind van het project zo laag mogelijk moet zijn. Maar de baten voor de bewoners, de buurt en de stad worden dan niet meegerekend, of misschien kunnen ze nog niet worden meegerekend.
Eigenlijk worden groene projectontwikkelingen daardoor tekort gedaan. Kort door de bocht: er worden veel eisen opgelegd, maar er komt niks terug. Er is geen concrete incentive om een project met een maximale groene ambitie te realiseren. Voor conservatieve projectontwikkelaars blijft het een moetje. Als we echt willen dat de stad meer een natuurgebied wordt, waarbij je verder gaat dan nestkastjes, dan zouden we naar een ander systeem moeten om natuur in de stad te financieren, waarbij groen meer een verdienmodel wordt dan een kostenpost.”
Paul Vernooy: “Over dit punt van Eric-Jan hebben wij het intern ook gehad. De baten komen in de basis niet bij degene die de kosten draagt. Nu ga ik misschien weer een stap verder, maar ziektekostenverzekeraars zijn een voorbeeld van een partij die baat heeft bij investeringen in groen. Als mensen minder snel ziek worden en sneller herstellen na een ziekte is dat een waarde die zich heel moeilijk laat vertalen in geld, maar het is wél een baat die ergens terechtkomt.”
De Groene Kaap werd in 2022 genomineerd voor de Rotterdam Architectuurprijs.
Cover: ‘Een mix van grassen en vaste planten’ door Laurens Kuipers (bron: KANbouwen)












